陝西科(ke)技******是以研發、生(shēng)産、銷售及服務(wu)為一體的高新(xīn)技術型化工閥(fa)門生産企業,專(zhuan)業生産鍛造球(qiú)閥、三通球閥、清(qing)管閥、料漿閥、石(shi)油化工設備等(deng)産品,閥門品種(zhǒng)齊全,在行業内(nei)率先通過ISO9001,CE國際(ji)認證等,并在各(gè)化工領域投🏃综合久久国❌产九一剧情麻豆🌈入(rù)使用,用戶對我(wo)**閥門産品高度(dù)認可。咨詢熱線(xian):400-****-***。

對分式(shi)球閥
對分(fèn)式球閥的産品(pǐn)特點:
因其(qi)對分式結(jié)構,閥體中腔大(dà),不結垢,便于拆(chai)裝檢修;球⛱️杆一(yi)體式,傳動精度(du)高;球體表面和(hé)閥座表面經過(guò)表面硬化處理(lǐ)後,使其具備極(jí)強的耐磨性,能(neng)适應煤化工🐇和(he)多晶矽各系統(tong)有耐磨、耐沖刷(shua)要求以及耐腐(fǔ)蝕要求的工況(kuàng),該類閥門具備(bèi)了防彈簧失效(xiào)、防結垢、防結焦(jiāo)等多功能(帶刮(gua)刀、帶吹掃)。

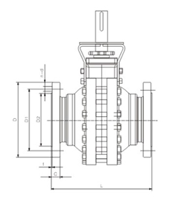
對分(fèn)式球閥結構圖(tu)
設計标(biao)準:
ASME B16.10;
法蘭尺寸:
API 598、ASME B16.104;
壓力等級:
-40 ~320℃;
适用(yong)介質:灰水、黑水(shui)、煤漿、固體粉末(mò)及顆粒等。


全焊接(jiē)鍛鋼固定球閥(fa)
固定式(shì)鍛鋼球閥
直埋(mai)(埋地)式全焊接(jie)球閥
供(gòng)熱專用全焊接(jie)球閥